Obras
Proyectos
Contacto
Obras
Proyectos
Contacto
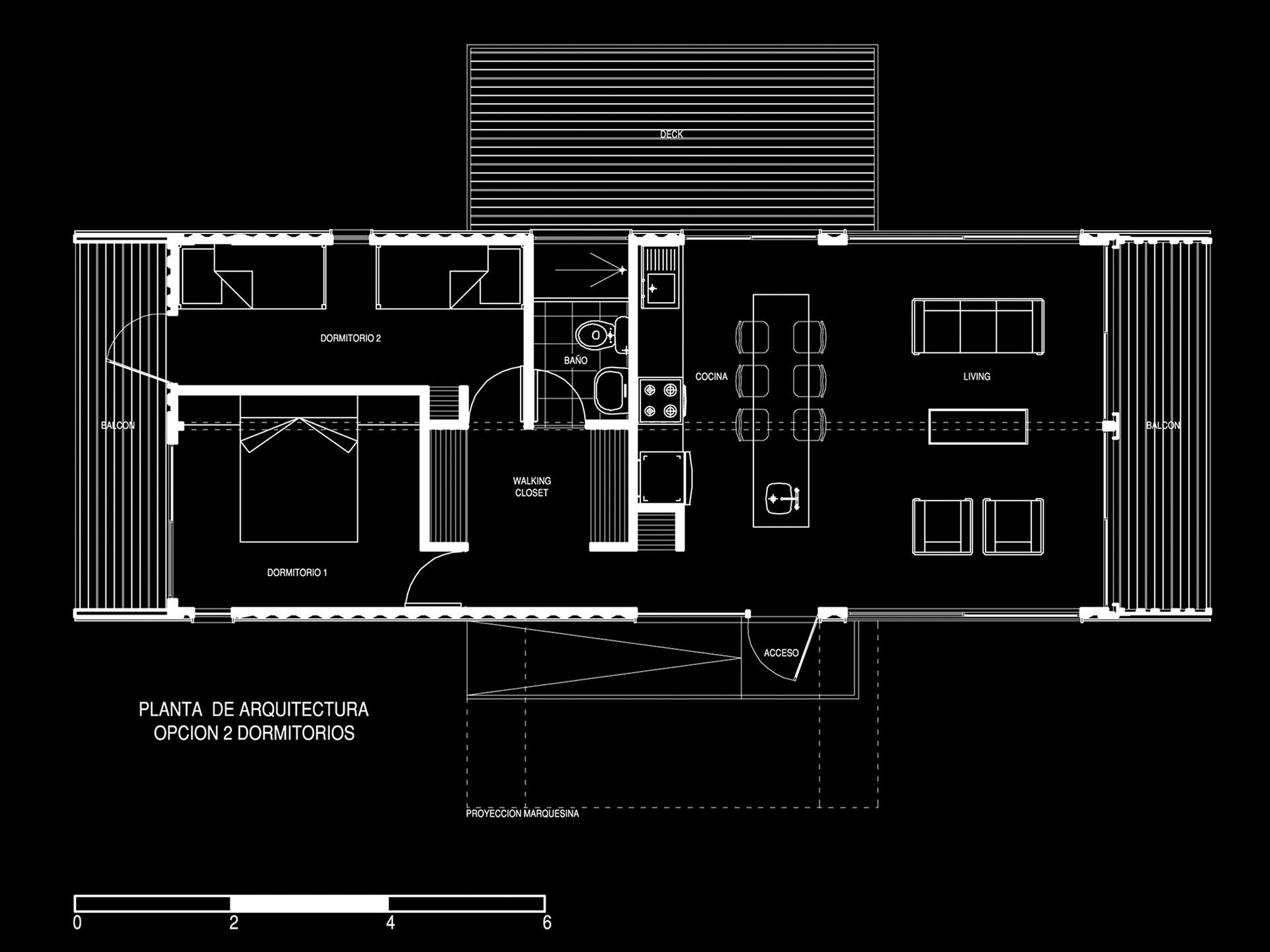
CASA CONTAINER 0664
Pichilemu, 2011
↑
Back to Top